Imobil finalizat aproape de plajă, cu documentatia completa ptr vanzare

ID: XBRL000G0 Mamaia, Nord 157
59.899€ + TVA
Descriere
2 cam , 55mp , 60.000 euro+TVA
Stadiu livrare “la alb”

Pret loc de parcare 8.000 euro+TVA
Pret finisaje 10.000 euro+TVA

Un ansamblu rezidențial tip boutique, cu doar 14 unitati locative, cu adevărat special, situat în Mamaia Nord, pe partea mării, la doar 200 de metri de plajă. Construit cu accent pe confort, intimitate și lifestyle, blocul oferă câteva tipuri de apartamente rare în zonă, gândite pentru cei care vor mai mult decât un simplu spațiu de vacanță.

Ceea ce îl diferențiază sunt apartamentele de la parter, fiecare având curte proprie, cu suprafețe între 35 și 46 mp – o extensie naturală a locuinței, ideală pentru seri liniștite, grătar, jacuzzi sau pur și simplu relaxare în aer liber.

La ultimul etaj (3) se află două apartamente exclusiviste, fiecare cu terasă de 35 mp, perfecte pentru zilele în care vrei doar să stai la soare, pe un șezlong, cu priveliștea și briza mării aproape.

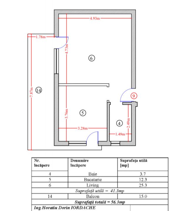
În imagini este prezentată tipul de apartament supus ofertei, disponibil la etajele 1 și 2, cu orientare către mare, având o suprafață totală de 55 mp, din care 13 mp reprezintă terasa – un spațiu excelent pentru mic dejun în aer liber sau momente de relaxare după plajă.

Localizarea este una privilegiată: la câțiva pași de unele dintre cele mai apreciate plaje, restaurante și resorturi din Mamaia Nord:
• Shut Up Beach
• White Titanic
• Restaurant Zuma
• Restaurant Hanul cu Pește
• Arena Regia Hotel & Spa

Un proiect potrivit pentru cei care își doresc o locuință într-o zonă în plină dezvoltare, aproape de plajă, dar și pentru investitori care urmăresc randamente excelente în regim hotelier sau long-stay.


Caracteristici
  • ID:XBRL000G0
  • Nr. camere:2
  • Nr. dormitoare:1
  • S. utila:55.00 mp
  • S. construita:65.00 mp
  • Comp.:Decomandat
  • Confort:Lux
  • Etaj:Etaj 1
  • Nr. bucatarii:1
  • Nr. bai:1
  • Nr. parcari:1
  • Pret parcare:7.000€ + TVA
  • An constructie:2023
  • Structura:Beton
  • Tip imobil:Bloc
  • Regim inaltime:P+3
  • Orientare:Sud-Est
Specificatii
Curent
Apa
Canalizare
Gaz
Izolatie Exterior
Ferestre PVC
Usa intrare Metal
Curte
Localizare
Adrian Dunareanu
Founder & Advisor
Esti interesat de aceasta proprietate ?
Proprietati similare
Imagine 961
Apartament premium în Natalya Resort Mamaia Nord, lângă lac
Mamaia, Nord 64.999€
2 camere 1 baie 55mp